MNWPG A系列設備是解決地下室污水排放的一種專用設備,采用的是“分體式雜物分離器裝置”避免了污水中雜物對水泵所產生的堵塞和纏繞,其密封狀態下的污水排放更是對環境起到極好的保護,該設備具有反沖洗的功能,解決了因污物沉淀而必需及時清掏的問題,避免了傳統污水泵使用過程中遇到的弊病。本產品采用的是全密封,不銹鋼材料作為污水貯存箱,以及獨特的通氣方式,所以對周圍的環境沒有任何影響,起到環保作用。

那南京米諾A型污水提升到底有何優勢呢?
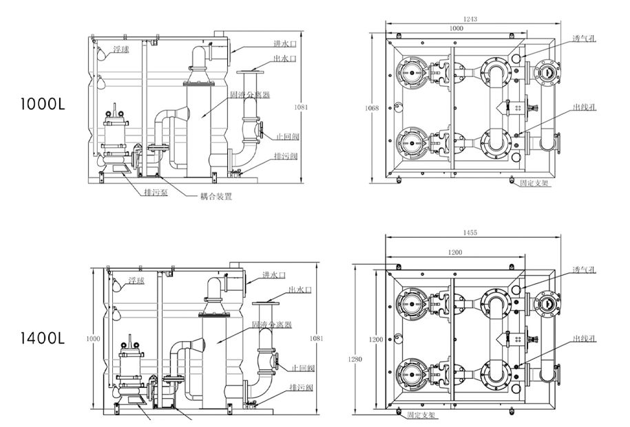
①從產品的細節圖出發:

南京米諾A型污水提升(簡稱MNWPG-A型)具備立式固液分離器,不銹鋼全通到球形止回閥,標準耦合裝置,不銹鋼導軌,不銹鋼方管底座及固定支架,配置雙液控制器,超大人孔設計,易于提泵檢修等功能。
②從產品功能上出發,MNWPG-A型具備聚污水收集,液位控制,隔離處理,提升排放功能。
③從產品特點上出發,MNWPG-A型二通,雙泵交替運行,雜物污水分離,氣動裝置控制,還可手機云端控制,報警故障提示,手動/自動運行,有效節約成本。
在排水過程中,MNWPG-A型系統控制兩臺水泵交替工作,整個運行流程有序進行,重復循環進行以下過程。

※當液位傳感器檢測到有水進入設備時,系統將啟動輔助泵(輔泵為選配)排出污水,同時發出警報。
當然針對各種環境,需要不同參數的污水提升泵,南京米諾也會根據需求調整定制出適宜的污水提升泵。

南京米諾A型污水提升泵主要適應于地下商場,地鐵站,醫院,停車場,學校,地下過過道等領域。更多關于南京米諾A型污水提升設備詳細內容,可與客服詳細溝通。
設備咨詢:A型反沖洗污水提升設備
- * 聯系人:
- * 手機:
- 公司名稱:
- 郵箱:
- * 采購意向:
-
*
驗證碼:
-
- B型反沖洗污水提升設備
- MNWPG-B功能簡介:①臥式固液分離器;②標準耦合裝置;③不銹鋼分水裝置;③不銹鋼全通道球形止回閥;④不銹鋼導軌;⑤配置雙液位…
-
- C型反沖洗污水提升設備
- MNWPG-C型功能介紹:LW干式排污泵(外置);臥式固液分離器;不銹鋼全通道球形止回閥;不銹鋼方管底座及固定支架;配置雙液位控制…
-
- D型反沖洗污水提升設備
- MNWPG-D型功能簡介:配置切割型污水泵;加長耦合裝置;不銹鋼全通道球形止回閥;不銹鋼導軌;不銹鋼方管底座及固定支架;配置雙液…
17327734396
總部電話:17327734396
微信:17327734396
傳真:025-58601258
總部地址:南京市江北新區葛塘街道博富路27號

